News

Townhome complex proposed on vacant lot near church in Seminary Hill

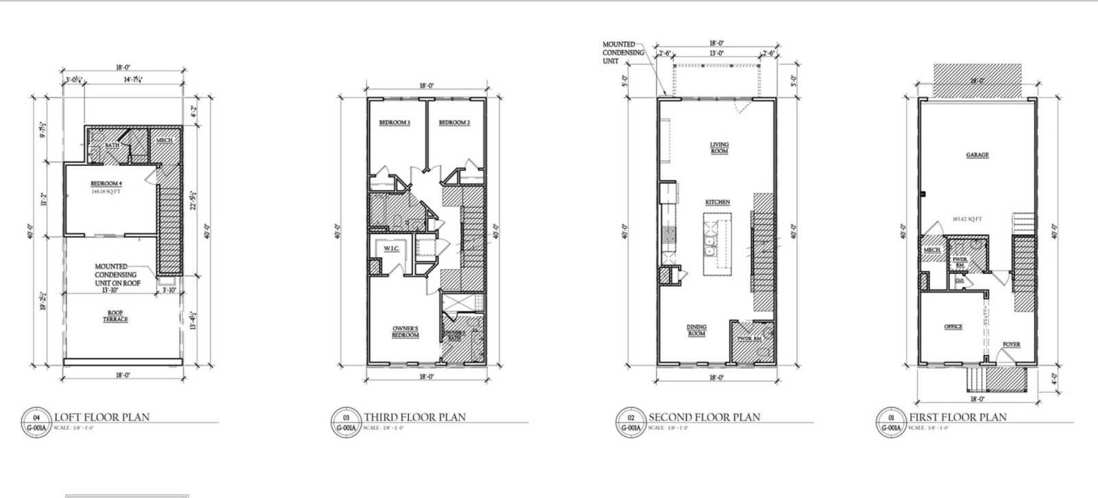
A developer is proposing to construct 11 three-to-four-story townhomes on a vacant lot that is shared with a church in Seminary Hill.

Development company 614 Westbrad, LLC, wants to build 45-foot-tall three-story townhomes with roof-level lofts, terraces, and parking garages at 11 N. Quaker Lane, 21 N. Quaker Lane and 3369 Duke Street.

Proposed plans call for four-bedroom, four-bathroom units on the 24,760-square-foot property, which is “currently developed with a surface parking lot that is shared with the [New Apostolic Church] on the adjacent parcel to the north.”

The proposal, created by a partnership between Jon Luria, Alan Wheat and Gene Gould, will head to the Planning Commission for a public hearing on Tuesday, Feb. 3.

“The proposed development will enhance the character of the neighborhood by developing vacant land and an existing surface parking lot with 11 new townhouse-style multi-unit buildings, (including one affordable unit) and will further the City’s goal of increasing housing stock throughout the City,” 614 Westbrad, LLC said in its application.

The new proposal would also keep 21 parking spaces for the church to use.

This is the second time that Luria has presented such a proposal. In 2003, the Planning Commission voted 6-1 to deny a proposed site plan which would have built eight townhouses on the property.

The commission found at the time that the project did not comply with city guidelines pertaining to “roadways and access into and out of the project” and compatibility with surrounding properties and streets. According to city documents:

The Commission found that the site plan did not meet the standards for approval by the planning commission set forth in section 11-409(A) and (B) of the zoning ordinance, which require that the applicable factors of section 11-410 have been appropriately considered in the site plan and that the development will not adversely affect the public health, safety and welfare.

In particular, the Commission felt that the proposal did not demonstrate compliance with the requirements of 11-410(D) and (K) of the zoning ordinance, which require adequate provision to be made for roadways and access into and out of the project and also require that design and location of roadways be compatible with and not adversely affect the surrounding property or create problems on the public streets surrounding the project. Particular concern was expressed about the impact of the proposed access from Quaker Lane and is contrary to the proffered zoning conditions established for the site.

Image 1 via Google Maps.

About the Author

  • Reporter James Cullum has spent nearly 20 years covering Northern Virginia. He began working with ALXnow in 2020, and has covered every story under the sun for the publication, from investigative stories to features and photo galleries. His work includes coverage of national and international situations, as well as from the White House, Capitol, Pentagon, Supreme Court and State Department. He's covered protests and riots throughout the U.S. (including the Jan. 6 riot at the U.S. Capitol), in addition to earthquake-ridden Haiti, Western Sahara in North Africa and war-torn South Sudan. He has photographed presidents and other world leaders, celebrities and famous musicians, and excels under pressure.